Fertighotel Portfolio

Hotel im Tullnerfeld

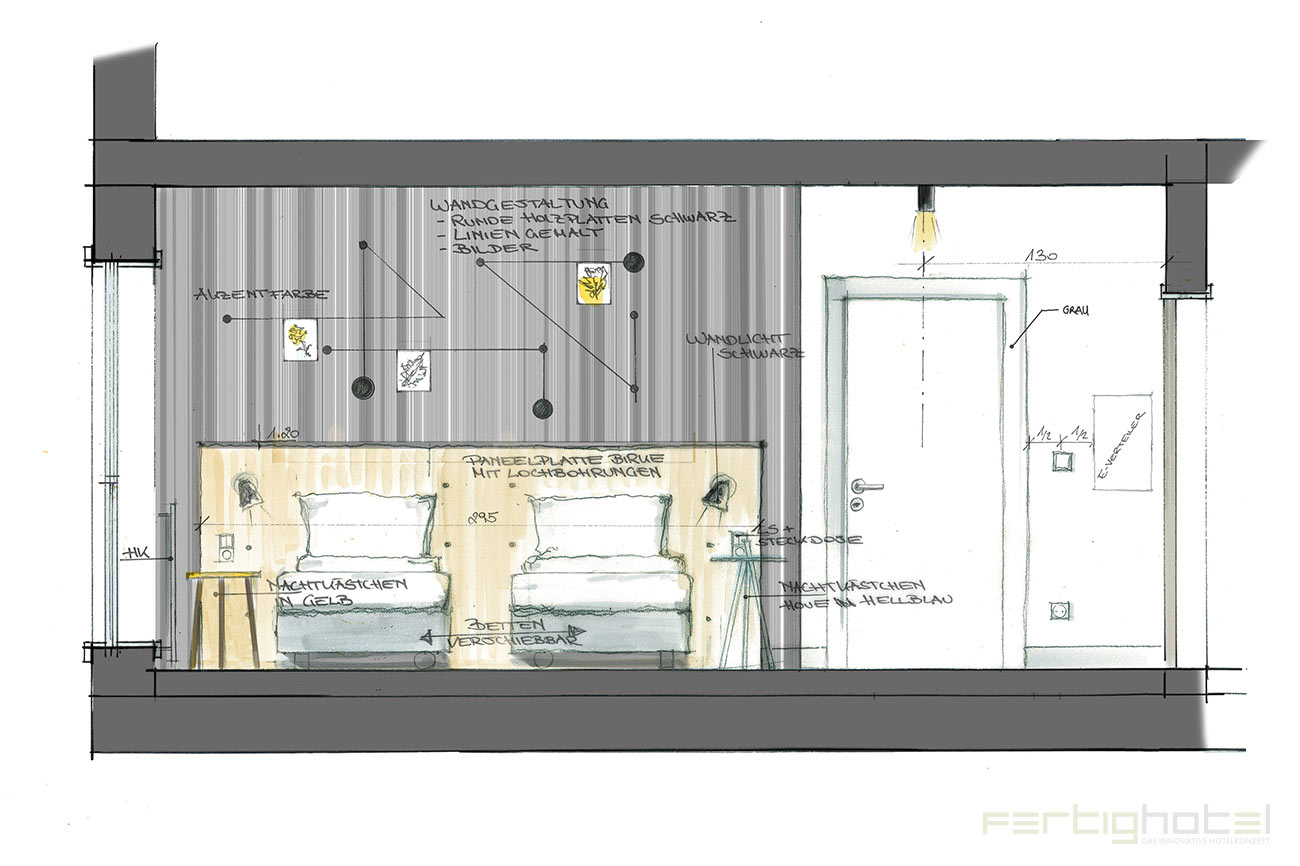
Doppelzimmer

Frische helle Farben dürfen nicht fehlen!

Im Zeitraum von Oktober 2016 bis April 2017 hat Fertighotel in der Nähe von Tulln ein Smart-Budget-Hotel mit 29 Zimmer errichtet. Vom Baustart bis zur Dachgleiche waren es gar nur 2 Monate. Das Hotel Tullnerfeld liegt im Gewerbegebiet zwischen Tulln und Langenrohr und bedient einerseits Reisende auf der Weststrecke, sowie Besucher der Messe Tulln. Ein 24-h Check-In Schalter steht für Spätankommende bereit. Weiters stehen ausreichend Parkplätze und gratis W-Lan zur freien Verfügung. Der Frühstücksbereich, gleich neben der Rezeption, dient Abends als Bistro in dem verschiedenste köstliche Snacks zur Auswahl stehen.

Das Interior Design stammt vom Tochterunternehmen Derenko. Frische helle Farben und moderne Ästhetik nach nordischem Vorbild, prägen das Erscheinungsbild. In den 29 Zimmern mit zeitlosem Designanspruch dürfen sich die Gäste des Hotel Tullnerfelds wohlfühlen. Je nach Belegungswunsch gibt es Zimmer mit 1 –3 gemütlichen Boxspringbetten.

Projektfotos

Ansichten & Pläne

Baustellen- & Pressefotos